VISTARES

CMI Multiproyectos

Guatemala, Zona 12

Diseño + BIM Management

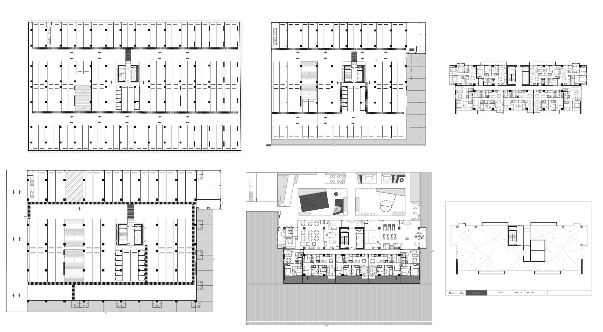
Paseo Vistares es un complejo de usos mixtos que complementa al Centro Comercial Pradera Vistares. Este proyecto, con 125,303 m² de construcción, alberga 948 apartamentos distribuidos en dos grupos de tres torres de 22 niveles, locales comerciales y un edificio corporativo.